Tiny - Gartenhaus 90 mm Wand

Perfekt für kompakte Wohnträume: Das Tiny Haus aus hochwertigem Fichtenholz

Unser Tiny Haus bietet eine durchdachte Kombination aus hochwertiger Verarbeitung, stabilen Materialien und praktischen Details. Mit seiner robusten Bauweise aus 90 mm dicken Fichtenholzbohlen und den präzisen 2-fachen Nut- und Federverbindungen ist es die ideale Lösung für alle, die komfortables Wohnen auf kleinem Raum suchen. Die Blockbohlen sind an den Hausecken um 10–15 cm überstehend – ein markantes Detail, das nicht nur optisch überzeugt, sondern auch für zusätzliche Stabilität sorgt.

Highlights

  • Individuelle Grössen: Anpassbar in 10-cm-Schritten
  • Stabile Konstruktion aus 90 mm dickem Fichtenholz
  • Hochwertige Fenster und Türen aus verleimtem Holz mit Isolierglas
  • Elegantes Vordach: 30 cm an den Seiten, 60 cm an der Haustürseite
  • Angenehmer Wohnkomfort dank großzügigem Innenraum

Ausstattung

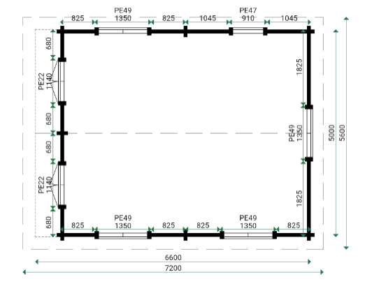
  • Abmessungen: Grundriss 500 x 600 cm, Traufhöhe 389 cm, Firsthöhe 537 cm
  • Kniestockhöhe: ca. 120 cm, Dachneigung 30 Grad
  • Innenboden: 45 x 45 mm imprägnierte Balken und 18 mm Nut- und Federbretter
  • Zwischenboden: Ca. 25 cm Höhe, 20 m² Fläche, mit 18 mm Nut- und Federbrettern, Aufgang über eine Leiter
  • Dachkonstruktion: Sparren mit Dachschalung und Glasfaser-verstärkten, Bitumen-Dachschindeln
  • Fenster und Türen:
    • 1 x Haustür mit Zylinderschloss
    • 1 x Balkontür (2-flügelig, 111 cm breit, 200 cm hoch, Dreh-Kipp)
    • 4 x Fenster (2-flügelig, 135 cm breit, 120 cm hoch, Dreh-Kipp)
    • 2 x Fenster (1-flügelig, 91 cm breit, 120 cm hoch, Dreh-Kipp)

Dach und Zusatzoptionen

  • Optional: Trapezdachblech für CHF 2300.- Aufpreis

Das Tiny Haus wird als praktischer Bausatz geliefert und ist somit einfach zu montieren. Die durchdachte Konstruktion, die hochwertigen Materialien und die flexible Anpassbarkeit machen es zur perfekten Wahl für alle, die sich einen funktionalen und stilvollen Rückzugsort schaffen möchten.

Weshalb Gartenmax?

Unübertroffene Produktkenntnis

Seit über zwei Jahrzehnten sind wir stolzer Anbieter von Holzprodukten in der Schweiz. Deshalb können wir oftmals weiterhelfen, wenn andere nicht mehr weiter wissen.

Persönliche Beratung

Ob Gartenhaus, Sauna, Carport oder Pavillon - jede Anschaffung ist eine wichtige Entscheidung. Bei Gartenmax sorgen wir mit persönlicher Beratung dafür, dass jede Investition perfekt zu Ihnen passt.

Mehr als nur ein Onlineshop

Unser Kerngeschäft ist seit über 42 Jahren der Holzbau. Dank unserer Spezialisierung können wir individuelle Wünsche und Anpassungen mit Leichtigkeit und Expertise umsetzen.

Haben Sie Fragen?

Egal ob Fragen zum Produkt, Service oder der Lieferung, wir helfen Ihnen gerne weiter.
Schreiben Sie uns eine Mail oder nehmen rufen Sie uns an:

Wir sind von Montag bis Samstag zwischen 08:00 und 20:00 Uhr telefonisch für Sie erreichbar. Für einen Besuch im Werkhof bitten wir Sie, vorab einen Termin zu vereinbaren.

Vom Wunschprodukt bis zur Lieferung

Sie haben individuelle Wünsche?

Sie haben spezielle Vorstellungen für Ihr Produkt? Bei Gartenmax setzen wir diese mit Freude um! Kontaktieren Sie uns einfach oder hinterlassen Sie eine Notiz bei Ihrer Bestellung - wir kümmern uns um den Rest.

Unklarheiten bezüglich der Montage?

Wir liefern grössere Produkte nicht nur nach Zürich, Basel, Bern, Luzern oder St. Gallen persönlich aus, sondern in der gesamten Schweiz. Dadurch können wir Sie vor der Montage persönlich beraten, um einen reibungslosen Aufbau zu gewährleisten.