Saunahaus Jakobstad

Saunahaus Jakobstad – Ihr privates Wellnessparadies

Das Saunahaus Jakobstad überzeugt mit seiner hochwertigen Verarbeitung aus massivem Fichtenholz und einer durchdachten Raumaufteilung. Perfekt für entspannte Saunagänge und gesellige Stunden, bietet es alles, was Sie für eine kleine Wellness-Oase im eigenen Garten benötigen.

Highlights des Saunahauses Jakobstad

  • Gefertigt aus 40 mm starken Blockbohlen aus unbehandeltem, gehobeltem Fichtenholz
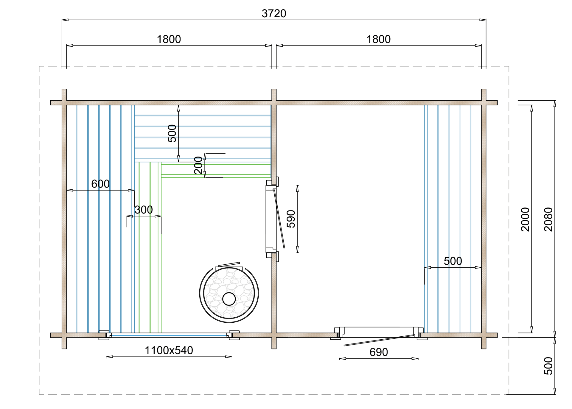
  • Kompakter Grundriss: 372 x 214 cm, mit einer Höhe von 245 cm (vorn) und Dachgefälle nach hinten
  • Geräumiger Vorraum (180 x 200 cm) und Saunaraum (180 x 200 cm) für maximalen Komfort
  • Vordach: 50 cm vorn und 20 cm ringsum, für zusätzlichen Schutz

Innenausstattung

  • 1 Sitzbank: 50 x 200 cm
  • 4 Saunaliegen:
    • 1 Liege: 60 x 200 cm
    • 1 Liege: 60 x 120 cm
    • 1 Liege: 30 x 200 cm
    • 1 Liege: 20 x 120 cm
  • Boden: Fichten-Nut-und-Kamm-Bretter auf 45 mm Bodenbalken

Fenster und Türen

  • 1  Fenster zum öffnen (110 x 54 cm) mit Isolierglas in Bronzefarbe
  • 1 Innentür und 1 Außentür mit Zylinderschloss

Dach und Dachbelag

  • Fichten-Dachschalung (ohne Dachhaut)
  • Empfohlene Dachbeläge:
    • 4 Rollen Flachdachfolie: CHF 400.00
    • EPDM Folie CHF 490.00
    • Trapez-Dachblech: Aufpreis CHF 580.00

Saunaofen-Empfehlungen

  • Sauna Ofen Harvia Kompaktofen 9 Kw, 400 Volt 3 x 16 Ampere Sicherung CHF 699.00                                                                                
  • Harvia Holz-Saunaofen inklusive Kamin: CHF 1'628.00

Das Saunahaus Jakobstad wird als Bausatz geliefert, inklusive aller notwendigen Materialien für den Aufbau. Mit seiner soliden Konstruktion, dem natürlichen Design und der vielseitigen Ausstattung bietet es Ihnen ein ganzheitliches Saunaerlebnis direkt in Ihrem Garten.

Weshalb Gartenmax?

Unübertroffene Produktkenntnis

Seit über zwei Jahrzehnten sind wir stolzer Anbieter von Holzprodukten in der Schweiz. Deshalb können wir oftmals weiterhelfen, wenn andere nicht mehr weiter wissen.

Persönliche Beratung

Ob Gartenhaus, Sauna, Carport oder Pavillon - jede Anschaffung ist eine wichtige Entscheidung. Bei Gartenmax sorgen wir mit persönlicher Beratung dafür, dass jede Investition perfekt zu Ihnen passt.

Mehr als nur ein Onlineshop

Unser Kerngeschäft ist seit über 42 Jahren der Holzbau. Dank unserer Spezialisierung können wir individuelle Wünsche und Anpassungen mit Leichtigkeit und Expertise umsetzen.

Haben Sie Fragen?

Egal ob Fragen zum Produkt, Service oder der Lieferung, wir helfen Ihnen gerne weiter.
Schreiben Sie uns eine Mail oder nehmen rufen Sie uns an:

Wir sind von Montag bis Samstag zwischen 08:00 und 20:00 Uhr telefonisch für Sie erreichbar. Für einen Besuch im Werkhof bitten wir Sie, vorab einen Termin zu vereinbaren.

Vom Wunschprodukt bis zur Lieferung

Sie haben individuelle Wünsche?

Sie haben spezielle Vorstellungen für Ihr Produkt? Bei Gartenmax setzen wir diese mit Freude um! Kontaktieren Sie uns einfach oder hinterlassen Sie eine Notiz bei Ihrer Bestellung - wir kümmern uns um den Rest.

Unklarheiten bezüglich der Montage?

Wir liefern grössere Produkte nicht nur nach Zürich, Basel, Bern, Luzern oder St. Gallen persönlich aus, sondern in der gesamten Schweiz. Dadurch können wir Sie vor der Montage persönlich beraten, um einen reibungslosen Aufbau zu gewährleisten.